Dobra wentylacja obory - to lepsze samopoczucie krów
Mikroklimat obory ma duży wpływ na zdrowotność i wydajność mleczną krów. Krowy wysoko wydajne oprócz dobrych jakościowo pasz, potrzebują dużo świeżego powietrza. Zawarty w nim tlen jest niezbędny do prawidłowego funkcjonowania organizmu. Niedobór tlenu spowalnia tempo przemiany materii, czego efektem jest obniżenie produkcji mleka. Dorosła krowa rasy HF oddaje do atmosfery do 30 litrów wody (w postaci pary wodnej) latem i do 15 litrów zimą. Wysoka wilgotność powietrza obniża samopoczucie zwierząt, a przy tym jest to środowisko sprzyjające rozwojowi bakterii chorobotwórczych (m.in. mastitis). Ponadto następstwem niedostatecznej wymiany powietrza w oborze jest także wzrost stężenia różnych gazów powstających z rozkładu zwierzęcych odchodów, głównie amoniaku.
W źle wentylowanych oborach u krów częściej stwierdza się występowanie chorób gruczołu mlecznego i skóry. W takich warunkach utrudniony jest też odchów cieląt, które podatne są na zapalenia płuc.
Naturalny system wentylacji z zastosowaniem kalenicowego otworu wywiewnego
Zadaniem takiego systemu wentylacji jest wymiana powietrza w pomieszczeniu poprzez doprowadzenie świeżego powietrza atmosferycznego z zewnątrz budynku z jednoczesnym usunięciem powietrza "zużytego".
70-80% wiatrów w naszym klimacie to wiatry z kierunków zachodnich i wschodnich, dlatego takie ustawienie obór, pozwala maksymalnie wykorzystać siłę wiatrów oraz ich działanie ciśnieniowo-ssące (deflekcja).
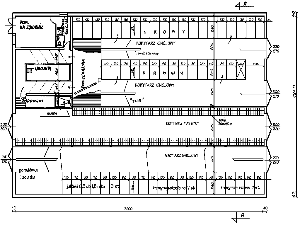
Dodatkowo każdy naturalny system wentylacyjny powinien składać się z otworów doprowadzających i otworów wyprowadzających powietrze, oraz wysokich wiatrownic po obu stronach kalenicy, dzięki którym zostanie utrzymany wylot powietrza. Następnie trzeba zachować różnicę wysokości usytuowania wlotu i wlotu na poziomie - 5 m (rys. 1.).
Przedstawione założenia, które należy uwzględnić przy projektowaniu wentylacji włącznie z różnicą temperatur wewnątrz i na zewnątrz budynku, wpływają na intensywność ruchu powietrza. W związku z powyższym napływające powietrze z zewnątrz jako chłodniejsze i cięższe, będzie zajmować niższą przestrzeń w pomieszczeniu, w którym przebywają zwierzęta. Dzięki temu będą zaopatrywane w niezbędny do funkcjonowania organizmu tlen.
Naturalna wentylacja najlepiej spełnia swoje zadania w przypadku zaprojektowania stałego otworu w kalenicy dachu oraz proporcjonalnie dobranych otworów nawiewnych w ścianach bocznych (regulowany wlot powietrza rys. 1.).
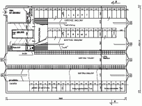
Oto przykład obliczenia wymiarów kalenicowego otworu wywiewnego oraz otworów nawiewnych w nowo budowanej oborze wolnostanowiskowej boksowej dla krów mlecznych (rys.2.) w gospodarstwie rolnym Piotra Pełszyka zam. Bujenka gm. Ciechanowiec.
Aby wszystkie zwierzęta miały szansę oddychać świeżym powietrzem, szpara wylotowa musi być dostatecznie duża. Jej wymiary zależą między innymi od: obsady zwierząt, produkcji ciepła przez zwierzę, różnicy wysokości usytuowania wlotu i wylotu powietrza oraz różnicy pomiędzy temperaturą wewnętrzną i zewnętrzną. Ilość wydzielanego ciepła przez krowy mleczne uzależniona jest w znacznym stopniu od poziomu wydajności. Wyższa produkcyjność wiąże się z intesywniejszym tempem przemiany materii, a tym samym większą produkcją ciepła, oraz z większą wymianą powietrza w wysoko wydajnych stadach. W związku z powyższym przy planowaniu naturalnego systemu wentylacji ww oborze skorzystałem z "Wytycznych do projektowania wentylacji w oborach" mających zastosowanie w większości europejskich stref klimatycznych (patrz tabela).
Obliczenie wymiarów kalenicowego otworu wywiewnego w oborze wolnostanowiskowej (przedstawionej na rys.2.). Zakładając docelowo wysoką produkcję mleka, ilość odprowadzonego powietrza powinna wynosić 588 m3/krowę/godzinę.
Z wytycznych zawartych w tabeli nr 1 wynika, że na jedną krowę musi przypadać 1380 cm2 powierzchni otworu kalenicowego.
- W oparciu o ww. wytyczne do projektowania wentylacji w oborach w sposób uproszczony można obliczyć szerokość szpary wylotowej ze wzoru:
- L = A x B/C
- gdzie:
- L - szerokość szpary wylotowej w cm.
- A - obsada zwierząt w budynku (docelowo 60 krów)
- B - otwór w kalenicy przypadający na 1 krowę - 1380 cm2
- C - długość obory w świetle muru - 3200 cm
- L = 60 x 1380 / 3200 = 25,87 cm
Dzieląc otrzymany wynik przez 2 (dwa podłużne otwory wylotowe), uzyskamy szerokość szpary wylotowej z jednej strony kalenicy (25,87/2 = 12,93 cm).
Aby utrzymać odpowiednie fizyko-chemiczne parametry powietrza, konieczne jest też obliczenie i wykonanie odpowiedniej wielkości otworów nawiewnych. Zaleca się aby ich całkowita powierzchnia stanowiła 150% powierzchni otworu wywiewnego. Zakładając, że wykonamy jeden podłużny otwór wzdłuż ściany, to powinien on mieć szerokość nie mniejszą niż 19,39 cm (12,93 x 1,5 = 19,39 cm). (Patrz rys. 1.).
Przy projektowaniu wentylacji należy również pamiętać o wrażliwości krów na występujące w pomieszczeniu przeciągi. Dlatego też zaleca się lokalizację otworów nawiewnych w ścianach bocznych na wysokości minimum - 2 m od poziomu podłogi. Dodatkowo zastosowanie długich klap wlotowych (rys. 1.) zapewni odpowiednie wymieszanie się powietrza zewnętrznego z powietrzem znajdującym się w oborze. Dzięki temu napływające z zewnątrz zimne powietrze nie opadnie bezpośrednio na zwierzęta znajdujące się pod otworami wylotowymi.
Bezpieczna wentylacja - to minimalizowanie przeciągów tj. szybkiego przemieszczania się zimnego powietrza. Przeciągi ochładzają nie tylko wnętrze pomieszczenia ale i zwierzęta co może wpłynąć niekorzystnie na ich zdrowie. Zdrowy klimat w oborze powstaje w wyniku wymiany powietrza z niską szybkością jego przepływu - na co ma wpływ regulowany wlot powietrza rys. 1.
Do obliczeń wentylacji wykorzystałem również dołączone rysunki dotyczące technologii jak też usytuowania otworów nawiewnych i wywiewnych zastosowanych ww. oborze.
autor: Kazimierz Szmurło
Dodaj komentarz:
Wasze komentarze:
Aktualnie brak komentarzy




















